
很多企業在規劃倉庫時,常常卡在這些問題:
- 空間看起來不小,但怎麼排都很亂
- 東西越堆越多,動線越來越卡
- 怕買錯尺寸,架子裝了反而更難用
實務上,倉庫規劃要從 產業類型 × 空間用途 × 作業方式 去思考。
✔ 怎麼拆解自己的空間
✔ 不同產業的倉儲架尺寸怎麼抓
✔ 動線怎麼規劃
一、先從「你的產業」開始思考倉庫用途
① 製造業倉庫:重、雜、多,安全與分類最重要
常見情境:
- 原料、半成品、成品同時存在
- 工具、治具、備品種類多
- 重量不一,堆疊風險高
規劃重點:
- 重物一定放下層,避免高層超載,原則為「下重上輕」
- 依「原料 / 半成品 / 成品」分類分區
- 倉儲架深度以 60–75cm 為主,穩定、好放,坪效利用率高
② 電商/物流倉庫:快進快出,動線就是效率
常見情境:
- SKU 品項多、出貨頻繁
- 每天都在揀貨、補貨、包貨
規劃重點:
- 先規劃「揀貨 → 包貨 → 出貨」順向動線
- A品(高周轉)放入口附近、腰胸高度
- 倉儲架深度常見 45-60cm,避免過深難找
③ 辦公室/行政單位:文件多,整齊比容量更重要
- 文件、檔案、備品為主
- 取用頻率低,但需要快速定位
規劃重點:
- 淺深度(30-45cm)即可
- 依據文件配置高度,層距一致,搭配標籤與編碼
- 優先考量整齊與未來擴充
二、怎麼做「空間劃分」?
實務上,倉庫好不好用,關鍵不是架子多不多,而是有沒有先思考這兩個問題:
進貨區、存放區、作業區、出貨區先畫出來
補貨與揀貨路線不要互相打架
空間的動線配置永遠先於倉儲架。
三、倉儲架尺寸怎麼抓?企業最常用的思考方式
① 深度怎麼選?
- 紙箱 / 周轉箱:60–75cm(最通用)
- 大箱 / 重貨:75–90cm
- 文件 / 料盒:30–45cm
② 層距怎麼算?
建議公式:物品高度 + 3~5cm 操作空間
實務上,儲物架分層並非越多層越好,要看貨品的分類與尺寸,有時反而分層不多但取貨效率更高。例如:下圖為樂器行規劃儲藏架,依據放置物品的高度來安排層數,最後客人決定只做兩層板,最上方不放置頂板,取放貨效率極佳,也非常整齊、一目了然。
%2B%E9%BB%91%E5%A4%BE%E6%9D%BF_%E6%A8%82%E5%99%A8%E6%9E%B6_%E5%90%89%E4%BB%96%E6%9E%B6_%E8%B2%A8%E6%9E%B6.jpg)
另外,分層高度規劃若沒做,最容易買錯。cuzcuz 3D提供分層高度檢視,分層確認後,點選分層高度,即可立即觀看每層高度。

③ 高度要多高?
- 常拿的:腰~胸高度 約150cm以下
- 重物:越低越好
- 不常拿:高層沒問題 頂層也可放置,常見儲藏架高度一般有 180/195/210/225/240cm
四、常見的倉儲架規劃配置
依據空間大小、出入動線、貨品數量來做規劃配置,大多企業有以下常見的倉儲架放置方式:
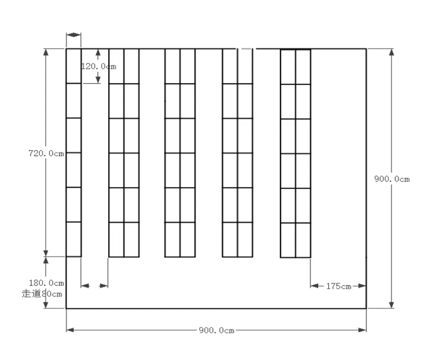
- 川字型走道空間規劃
- ㄇ字型:倉庫/儲藏室/四面空間規劃
- 綜合型:搭配空間走四邊規劃+川字型



五、企業倉儲規劃的實際流程
常見的規劃流程如下:
- 了解產業、貨物與作業動線等方式
- 現場丈量空間與限制
- 平面配置 → 3D立體確認
- 確認尺寸與數量後施工安裝
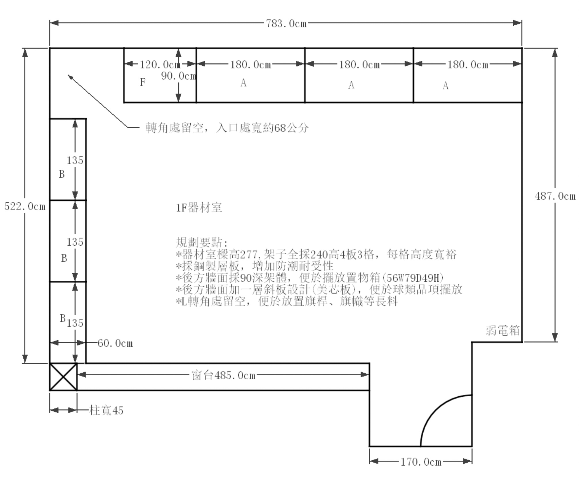
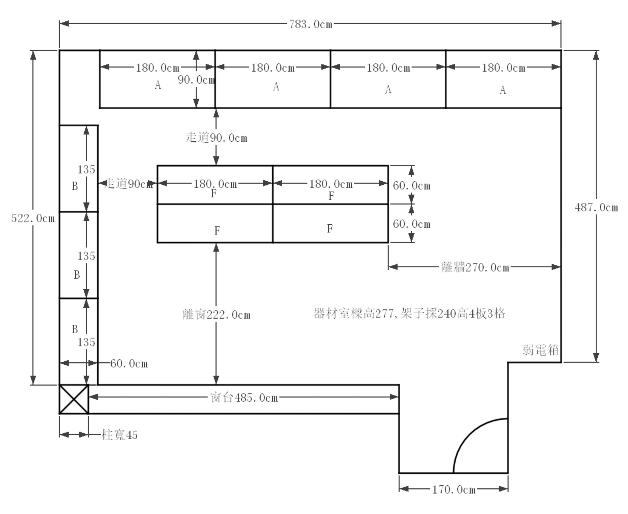
六、不同產業倉儲規劃案例
以下提供不同產業倉儲規劃案例供參考:
生技業倉儲架
擺放物品:測試設備、機台等,角鋼架載重每層可達300公斤,可因應需要穩定度與載重力的客戶需求

製造業倉儲架
擺放物品:零件盒、工具箱,角鋼架載重每層可達300公斤,可因應需要穩定度與載重力的客戶需求

公部門倉庫文件架
擺放物品:文件夾、紙箱物品等,角鋼架可因應不同文件高度設定分層高度,並進行良好分類與管理。增加封孔柱可增進美觀。
%20(1).jpg)
食品業倉儲貨架
存放物品:紙箱、貨物等,可依據走道分區規劃角鋼架擺放,並可因應未來動線調整時的調節,未來也好擴充

科技業倉儲架
存放物品:分類箱、零件、成品與半成品材料等
%20(2).jpg)
一般企業倉庫貨架/酒商貨架
存放物品:紙箱、散料等
%20(1).jpg)
科技製造業倉儲貨架
存放物品:材料、零件、模具等
七、FAQ|倉庫規劃與倉儲架常見問題
我已經有倉庫了,還需要規劃嗎?
大多數企業都是「有空間但不好用」,重新規劃動線與分區,往往比擴倉更有效。
倉儲架一定要客製嗎?
不一定,但尺寸可調、可擴充的模組化設計,能避免未來換倉或爆量時全部重來。
多久可以完成規劃?
視空間與複雜度而定,一般丈量後即可提供初步平面與建議方向。
